$8,499,000

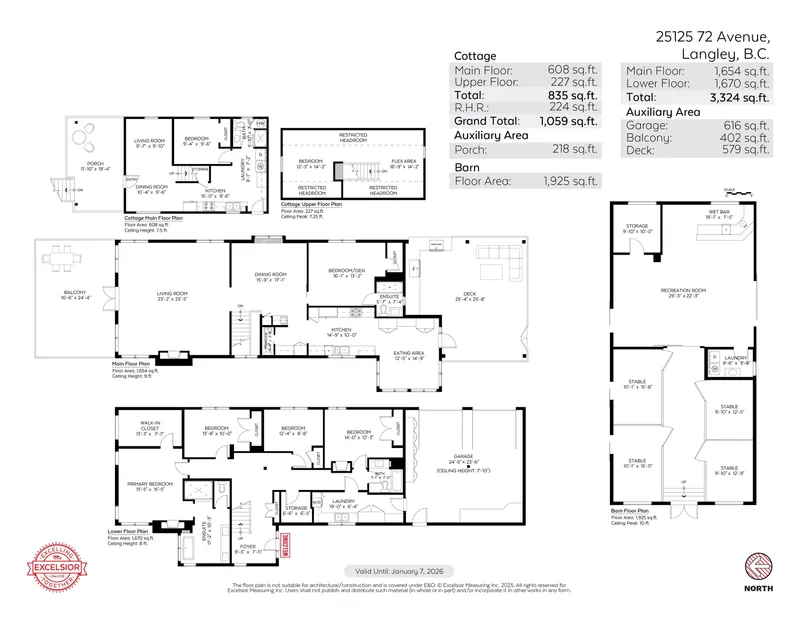
25125 72 AVENUE

Langley BC V4W 1J1 - County Line Glen Valley
5 bd
4 ba
3,324 sqft

About This Property

A once-in-a-lifetime opportunity to own 66.3 ACRES just a short ride to world-renowned Thunderbird Show Park. This extraordinary estate blends rustic charm with refined elegance, featuring an 5 bedroom/3 bath Georgie award-winning, custom finished home with timeless finishes and sweeping panoramic views of the mountains. This is a home with a story and that has been thoughtfully told through out the home. The show-stopping barn is designed for the discerning equestrian—crafted with uncompromising quality, functionality, and class, professionally built riding arena. From sunrise rides to sunset views, every inch of this estate speaks to high-end rural living at its finest. A legacy property for those who demand excellence.BONUS:open permit for a 10,000 sqft home, plans are available!

Features

Guest Suite
Storage
Garden
Balcony
Private Yard
Garage Double
RV Access/Parking
Guest
Asphalt
Gravel

Property Details

MLS NumberR3079182
Property TypeSingle Family Residence
Bedrooms5
Bathrooms4
Square Feet3,324
Lot Size2,888,028 sqft
Parking Spaces2
HeatingForced Air, Natural Gas
Days on Market70
StatusActive
Listed ByRoyal LePage Little Oak Realty

Mortgage Calculator

Estimated Monthly Payment
Partner Rates Available Contact us for preferred mortgage rates

Location

Book a Showing